Primăria Timișoara vrea să îi consulte pe cetățenii orașului cu privire la PUZ Oituz, primul plan urbanistic elaborat de administrație în ultimii opt ani. Conceptul de dezvoltare a zonei care face tranziția între Cartierul Cetate și zona Iulius Town include realizarea „unui spațiu educațional deschis orașului, verde, pietonal și umanist”, conform reprezentanților primăriei.
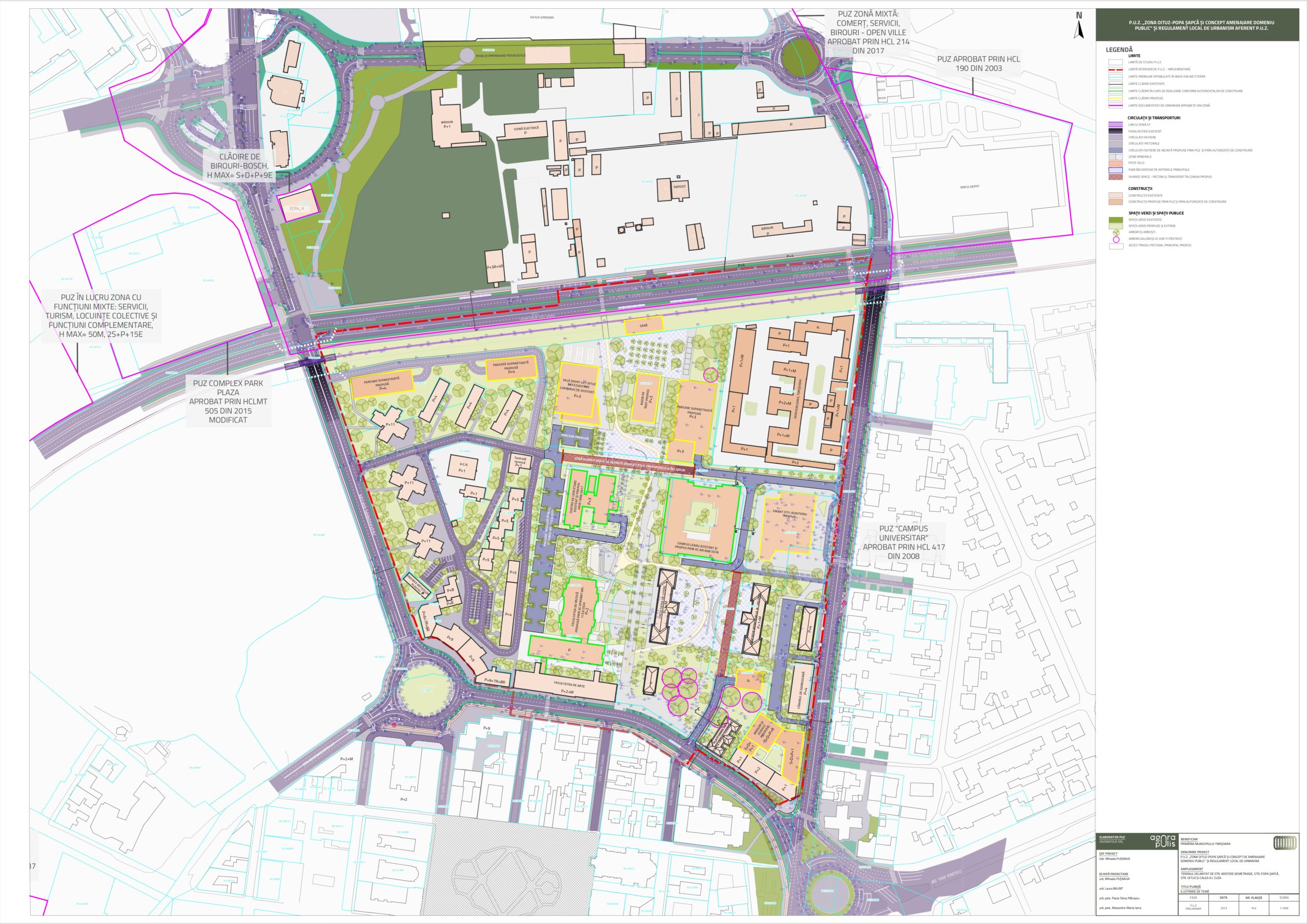
PUZ-ul „Zona Oituz-Popa Șapcă și concept amenajare” face referire la spațiul cuprins între Str. Aristide Demetriade și calea ferată la Nord, Calea A.I.Cuza la Vest, Str. Popa Șapcă la Est și Str. Oituz la Sud.

Documentația a fost întocmită de AGORAPOLIS SRL pentru 179.999 de lei cu TVA – puțin peste 36.000 de euro. Proiectul este realizat cu fonduri de la bugetul local, în parteneriat cu Universitatea de Vest din Timișoara, cea care deține cele mai multe dintre terenurile vizate.
Cum va fi transformată zona
Proiectul propune amenajarea de noi spații verzi, pe o suprafață de cca. 2 hectare, plantarea a 350 de arbori, realizarea unor trasee pietonale și piațete pentru studenți, rezidenți și turiști.
Una dintre piațete ar urma să fie deschisă ca spațiu public amplu între Muzeul Revoluției și Facultatea de Teologie, două clădiri „gemene”. Aici ar urma să fie găzduite diferite evenimente outdoor. O altă piațetă ar trebui să fie între noul Institut de Cercetări Avansate de Mediu, Campusul Lenau, sala de sport și bazinul de înot nou create.
Totodată, se are în vedere realizarea unei parcări supraterane multietajate, cu peste 500 de locuri, care să fie destinată atât celor care doresc să viziteze Piața Unirii, cât și studenților și personalului universității.
De asemenea, se propune realizarea unui traseu pietonal care să conecteze Cartierul Cetate la o nouă gară urbană. În proiect mai este prevăzută regenerarea urbană a zonei locuințelor colective de pe Intrarea Doinei, sistematizându-se suprafețele de acces, parcările și spațiile verzi.
Consultare publică
Timișorenii sunt invitați să-și transmită opiniile cu privire la noul plan urbanistic „Zona Oituz – Popa Șapcă și concept amenajare domeniu public”, până în 8 aprilie. După aceea, Planul Urbanistic Zonal va fi supus avizării instituțiilor competente și înaintat spre aprobare Consiliului Local Timișoara.
Sugestiile pot fi trimise pe adresa de e-mail dezvoltareurbana@primariatm.ro, după consultarea PUZ-ului.
„Este viziunea orașului pentru dezvoltarea unei zone cu un mare potențial pentru Timișoara. Stabilim direcția de dezvoltare a zonei și ne dorim coerență și măsuri în pas cu noile tendințe europene de amenajare a spațiului și mobilității urbane. În acord cu această viziune, proiectul prevede amenajarea de noi spații verzi, trasee pietonale, piațete, o nouă gară care să deservească și transportul public urban. Dar și o nouă parcare. Sunt facilități absolut necesare pentru această zonă care se transformă treptat într-un nou campus educațional, ce include atât strategia de dezvoltare a Universității de Vest, cât și investițiile primăriei în noul Campus Lenau”, transmite primarul Timișoarei Dominic Fritz.
foto: PMT

Trimite articolul
X“pații verzi și parcare supraterană”. Adica veti parca printre boscheti. dar intai se vor face niste studii de fezabilitate, etc. Aleile pietonale vor fi cele ce le veti face voi umbland pe acolo. Dar poate se va pune o schela la intrare si o mana rosie la iesire. De trei ori “URA !” pentru regimul Fritz.
-
daca nu se facea, comentai, daca se face asa, comentezi; daca se facea altfel, comentai si asa. lai doar ciuda pe fritz ,asta-i toata schema. hai jet, inapoi in Dolj.
-
Vai de capul tau, ce poti scoate din tine la stirea asta…
-
Bai băiatule, ești paralel cu viața. Mergi înapoi în necivilizație dacă asta îți place și lasă-ne pe noi în pace.
-
Nu se poate face decat parcare supraterana, ca zona Popa Sapca e plina de tuneluri in subteran.
Ca cineva mai crede abureli deastea. Un stadion nou nu au putut sa faca in mai mult de 10 ani, o sala polivalenta tot “fac” de 8 ani, piata Victoriei o tot reabiliteaza din 2015 de cand s-a aflat ca vom fi capitala Europeana, in tara si orasul asta incompetenta e rege.
Asa ca lasati porcariile astea
Nu stiu de ce mai fac consultare publica din moment ce deja s-au pus sa construiasca acolo (si nu ma refer la campusul Lenau). Orice ar zice cetatenii, ei oricum vor merge inainte cu planul lor.
Parcarea trebuie făcută la magazinul Bega, nu la Oituz.
Fosta centrala telefonica de linga primarie era de vinzare, loc ideal pentru o parcare dar noi platim milioane pentru studii, nu pentru cladiri.
-
Ai si gandit? Cum sa faci parcare acolo? Pe unde intri in parcare, pe unde iesi, de pe strada aia ingusta? Trebuie facuta o verificare a rezistentei cladirii, pentru ca locatia a fost proiectata pentru birouri, nu pentru masini, care cantaresc mult mai mult decat oamenii. Oi fi inginer structurist si ai informatiile, dar n-ai gandirea elementara.
Nu va mai satura pe astia de la Lenau. Ati dat fail cu renovarea cladirii din Unirii, ati pus mana pe Liceul Mincu prin desfintarea lui(ca de ce sa avem liceu tehnic). Acuma nu va place nici acolo, vreti cladire noua cu dedicatie.
PUZ? Lasa-l incolo de puz, sa se faca un “masterplan”, e mai “flexibil”, mai pe usere style.
-
Nuuuuuu. Intai niste studii. De oportunitate, de fezabilitate, de … ce-o mai fi. Studii sa fie. Daca le-au facut deja sa le refaca, sa fim siguri ca e bine si s-au indestulat cu totii. 😁 Dupa aia masterplan, servent-plan si neighbor-plan. Poate si un plan-plan. Iar la mijloc o schela cu o mana rosie pe ea.🤣🤣🤣
S-au terminat oare problemele din centru, si noi nu am stiut? S-a rezolvat Strada Garii, parcarea de langa magazinul Bega, Cea de pe locul fostului, comisariatsu multe altele? Cred ca gara de langa Iulius este tot atat de necesara ca si chelului o tichie de margaritar. Sau onor Primarie are un excedent de fonduri pe care TREBUIE sa ii cheltuie pe studii diverse. Sau se impune sa se dea de lucru unor firme de prifil? Primaria exceleaza in a plati diverse studii de fezabilitate etc, dar fara nici o finalitate. Pana se va ajunge la realizare, expira valabilitatea planului si se reface tot pe bani publici! Oare cand se va incepe sa se lucreze intr-adevar “nemteste” ?
Parcare pt cei care lucreaza in zona pietei unirii ? Noi nu contam nu ?